Installazione di finestre nello strato isolante
COMPACFOAM Klima Konform – Surface-Installazione pre-murale per finestre e porte nello strato isolante
Avvitabile direttamente con viti standard per telai finestra; certificato ift; documentato per stabilità strutturale, protezione anticaduta, protezione antieffrazione e isolamento acustico.
Configura ora e richiedi un preventivoavvitabile
Test di sistema ift
Protezione anticaduta ETB
avvitabile senza preforatura
Protezione antieffrazione RC2 / RC3
Classe di resistenza al fuoco B1
Isolamento acustico fino a 64 dB
Peso del vetro fino a 1.500 kg
Profili CNC personalizzati disponibili
Privo di formaldeide
riciclabile
avvitabile
Test di sistema ift
Protezione anticaduta ETB
avvitabile senza preforatura
Protezione antieffrazione RC2 / RC3
Classe di resistenza al fuoco B1
Isolamento acustico fino a 64 dB
Peso del vetro fino a 1.500 kg
Profili CNC personalizzati disponibili
Privo di formaldeide
riciclabile
Un sistema di installazione pre-murale in isolamento strutturale ad alta densità
Cliccando sul pulsante acconsenti alla condivisione dei dati con YouTube.
Ulteriori informazioniKlima Konform – il sistema
Installazione di finestre nello strato isolante
sicuro, economico, verificabile
Il sistema COMPACFOAM Klima Konform integra finestre e porte nello strato isolante. Il telaio di montaggio, realizzato in isolamento strutturale ad alta densità (CF125 o CFeco200), viene fissato tutt’intorno all’apertura della finestra sulla parete portante – avvitato direttamente senza preforatura nel profilo. La finestra viene quindi inserita nel telaio, esattamente come in un’apertura a muro tradizionale.
I vantaggi dell’installazione pre-murale: il piano della finestra viene spostato verso l’esterno nello strato isolante. Questo migliora le prestazioni termiche nel punto di giunzione dei componenti edilizi, aumenta i guadagni di calore solare ed elimina l’effetto «feritoie» associato alle spallette profonde.
Nuove costruzioni con sistema a cappotto termico (ETICS) (spessore isolamento 160–300 mm)
Risanamento di edifici esistenti con isolamento esterno aggiuntivo
Progetti Casa Passiva (ottimizzazione del valore Ψ)
Porte ad alzata e scorrimento ed elementi pesanti fino a 1.500 kg
Muratura a doppio guscio
Sottostrutture in acciaio
Elementi a filo pavimento con protezione anticaduta (ETB)
CF-V-Fixx
Sistema per applicazioni specialistiche in muratura a doppio guscio
Il sistema CF-V-Fixx è stato sviluppato per l’installazione di finestre e porte nello strato isolante di murature a doppio guscio e facciate ventilate. Il suo impiego è particolarmente consigliato quando non è strutturalmente possibile avvitare la finestra frontalmente – ad esempio, perché il guscio esterno della muratura è già stato posato o perché il progetto prevede il risanamento di murature a doppio guscio esistenti.
I profili CF-V-Fixx montati sulla struttura dell’edificio formano un telaio continuo e termoisolante. Il sistema trasferisce in modo sicuro i carichi del vento e i carichi vivi alla struttura portante. I profili vengono incollati e ulteriormente fissati meccanicamente.
Montaggio nello strato isolante in caso di muratura a doppio guscio
Risanamento di edifici esistenti con muratura a doppio guscio già presente
Ambiti di impiego in cui l’avvitamento del telaio dal fronte è strutturalmente impossibile
Edilizia sostenibile con l’obiettivo di facilitare una futura sostituzione delle finestre
Perché COMPACFOAM Klima Konform?
I sistemi di montaggio pre-murale sono disponibili da diversi produttori – basati su profili in EPS espanso, pannelli in PU riciclato, profili estrusi in plastica e staffe individuali in acciaio. Le differenze stanno nei dettagli: la facilità di installazione in cantiere, le proprietà isolanti del supporto, il livello di documentazione necessaria per l’omologazione edilizia e la flessibilità per costruzioni speciali. COMPACFOAM si distingue in tutti e quattro gli aspetti.
Avvitabilità
Nessuna preforatura, nessun tassello – vite per telaio finestra da 7,5 mm avvitata direttamente nel materiale
Nei sistemi a base PUR, la finestra viene fissata tramite adesivo e staffe metalliche. Questo funziona, ma richiede tempi di indurimento e condizioni meteorologiche adeguate. Con il sistema Klima Konform, l’installatore avvita una vite standard per telaio finestra direttamente attraverso il profilo nel supporto – senza preforatura nel COMPACFOAM. La profondità di avvitamento nella struttura dell’edificio dipende dal materiale del supporto (calcestruzzo, mattone silico-calcareo, calcestruzzo cellulare, ecc.); la tabella è disponibile per il download.
Isolamento termico
Curve isotermiche migliorate, valore fRsi verificato
La norma DIN 4108-2 richiede un fattore di temperatura fRsi ≥ 0,7 per prevenire la formazione di muffa. L’installazione pre-murale con il sistema Klima Konform sposta il piano della finestra nello strato isolante, migliorando così la distribuzione isotermica nel punto di giunzione dei componenti edilizi. La temperatura superficiale critica di 12,6 °C (nelle condizioni climatiche standard di -5 °C esterno / +20 °C interno) viene mantenuta in modo affidabile. COMPACFOAM CF125 raggiunge un valore di conduttività termica di progetto pari a λ = 0,038 W/mK.
Protezione anticaduta (ETB)
Testato secondo la linea guida ETB – Categorie A, C2 e C3
Gli elementi finestrati a tutta altezza devono essere in grado di sopportare un carico di almeno 2,8 kN nei punti di fissaggio in caso di impatto. Il sistema Klima Konform soddisfa i requisiti ETB in tutte e tre le categorie. Per gli elementi con protezione anticaduta, viene applicata una doppia vite con interasse di 80 mm; la distanza dal bordo è di almeno 40 mm e la profondità di avvitamento nel profilo è di 80 mm.
Protezione antieffrazione
Testato secondo gli standard RC2 e RC3 – superati i test statici, dinamici e di effrazione manuale
La verifica secondo le norme ÖNORM B 5338 e DIN EN 1627-1630 comprende tre fasi: carico statico di 3.000 N (RC2) o 6.000 N (RC3) su tutti i punti critici, prova d’impatto a pendolo con pneumatico gemello da 50 kg e prova di effrazione manuale con utensili standardizzati – sia nel punto di giunzione tra telaio finestra e sistema Klima Konform sia nel collegamento alla struttura muraria. Il sistema ha superato tutte le prove.
Isolamento acustico
Fino a 64 dB – nessuna riduzione dell’indice di isolamento acustico della finestra
L’elevata densità del materiale COMPACFOAM riduce al minimo i ponti acustici nel punto di giunzione tra componente e struttura. Il rapporto di prova conferma che il sistema Klima Konform non riduce le prestazioni di isolamento acustico nominale della finestra installata. In combinazione con il disaccoppiamento meccanico dalla struttura muraria, la trasmissione del rumore strutturale viene ridotta al minimo.
Profili personalizzati e lavorazione CNC
CNC a 5 assi fino a 4.700 mm – cunei isolanti, profili smussati, sezioni trasversali personalizzate
I profili standard coprono la maggior parte degli scenari di installazione. Per progetti personalizzati – bordi superiori inclinati per il drenaggio dell’acqua piovana, cunei isolanti integrati, soluzioni su misura per intradossi – COMPACFOAM li realizza su macchine CNC a 5 assi (fino a 4.700 × 600 × 300 mm in un unico pezzo) o tramite taglio a filo a 2 assi (fino a 2.350 × 500 × 500 mm). I profili sono privi di deformazioni e dimensionalmente stabili.
Technical information & details
collegamento laterale
collegamento inferiore
Tolleranza
Lunghezza: +5/-0 mm, curvatura <3 mm non incassato
Materiale
CF125 o CFeco200
Trasferimento dei carichi verticali:
Ogni costruzione di finestra è supportata da blocchi di supporto puntuali nel telaio. L’intero carico morto della finestra è concentrato sotto questi punti di supporto e deve essere trasferito in modo sicuro nella parete.
Versione 1
Forza per punto di fissaggio < 0,86 kN
Versione 2
1 punto di fissaggio aggiuntivo
Forza per punto di fissaggio < 1,23 kN
Versione 3
2 punti di fissaggio aggiuntivi
Forza per punto di fissaggio < 1,72 kN
È necessario utilizzare una staffa (versione 3) se la sporgenza del profilo conforme al clima è > 100 mm. Le singole forze di contatto nei punti di fissaggio possono essere determinate utilizzando il calcolatore di fissaggio COMPACFOAM. Ci contatti per ricevere il suo dimensionamento personalizzato.
Trasferimento dei carichi orizzontali:
I carichi orizzontali nelle costruzioni di finestre si generano a causa del vento o dell’impatto sui vetri. Da lì, vengono trasferiti alla struttura del telaio. Questo carico viene trasferito al telaio di montaggio in un punto attraverso la connessione a vite laterale.
Collegamento inferiore
Collegamento laterale
Collegamento laterale con ampia sporgenza
A…. distanza massima di avvitamento in alto e sui lati <700mm o in base ai requisiti statici
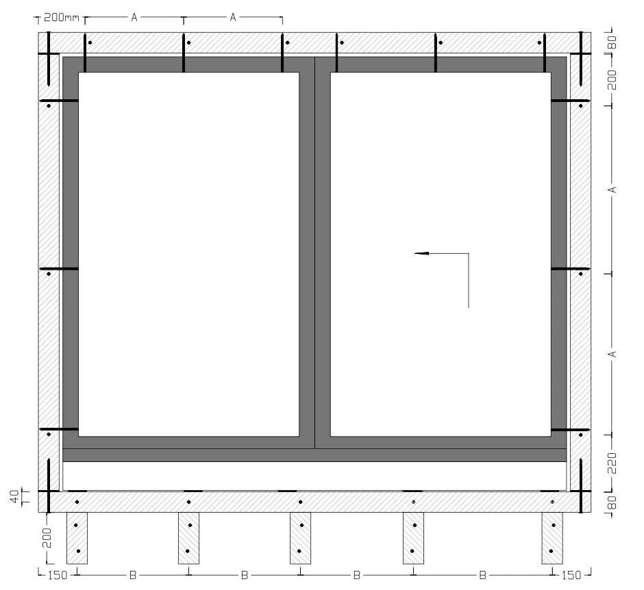
B…. Distanza massima tra i supporti nella parte inferiore <500 mm, disposizione sotto i punti d’angolo del pannello fisso Vite a testa cilindrica per telaio finestra ø 7,5 mm, distanza e lunghezza di ancoraggio nel substrato in base ai requisiti statici o alla linea guida RAL. Non è necessaria alcuna preforatura nel profilo isolante della sottostruttura!
Collegamento inferiore
Collegamento a vite dal basso
Collegamento inferiore
Collegamento a vite dall’alto
collegamento laterale
collegamento inferiore
A….distanza massima del collegamento a vite <700mm
Vite a testa cilindrica per telaio finestra diametro
ø 7,5 mm, distanza e lunghezza di ancoraggio nel substrato
in base ai requisiti statici o alle linee guida RAL. Non è necessaria alcuna preforatura nel profilo isolante della sottostruttura!
Tolleranza
Lunghezza: +2/-2mm Tolleranze di fresatura: +/-0,3 mm Piegatura <3mm Chiavi +0,0/-0,5mm
Materiale
CF125 o CFeco200
Variante di montaggio per muratura a doppio guscio e facciate ventilate.
- Profilo di montaggio CF-V-Fixx
- Muratura
- Pellicola di tenuta interna
- Guida di foratura per collegamenti a vite angolari con dima di foratura
- Cordoli di adesivo con adesivo di sistema CF: 2 cordoli, larghezza 10 mm
- Vite di montaggio CF 7,5 x 62 mm
- Davanzale interno
- Pannello di sistema CF-V-Fixx
- Pellicola di tenuta esterna
- Vite di montaggio CF FK 7,5 mm (lunghezza secondo necessità)
- Vite di montaggio CF FK 7,5 mm (lunghezza secondo necessità)
- Vite di montaggio CF FK 7,5 mm (lunghezza secondo necessità)
1. taglio dei profili su misura
2. applicare l’adesivo
3. preforatura e avvitamento
4. posizionare e allineare i traversi rimanenti
Varietà del sistema Klima Konform
Il sistema Klima Konform offre soluzioni speciali personalizzate per progetti edilizi impegnativi. Sezioni flessibili, forme speciali, cunei isolanti integrati o soluzioni individuali per l’intradosso: è possibile realizzare quasi tutte le esigenze. I profili inclinati appositamente realizzati nella parte superiore offrono inoltre una protezione ottimale dall’acqua piovana durante la fase di costruzione.
I prodotti non si deformano e non si piegano, il che garantisce un’eccezionale stabilità. Grazie al loro peso ridotto e all’elevata resistenza, sono anche facili e veloci da installare.
Questa varietà di opzioni garantisce una perfetta personalizzazione per ogni progetto e stabilisce nuovi standard di funzionalità, efficienza e qualità.
La produzione precisa è garantita da tecnologie all’avanguardia:
Forare la barra inferiore a 150 mm dall’estremità della barra e praticare i seguenti fori a intervalli di 700 mm.
Utilizzare adesivo MS Polymer per i giunti d’angolo e di testa per creare connessioni ermetiche e a tenuta d’acqua.
Vengono utilizzate viti per telai di finestre da 7,5 mm con testa piatta. Le viti sono disponibili in lunghezze da 42 mm a 400 mm.
Cliccando sul pulsante acconsenti alla condivisione dei dati con YouTube.
Ulteriori informazioniCliccando sul pulsante acconsenti alla condivisione dei dati con YouTube.
Ulteriori informazioniProfondità di avvitamento
La profondità di avvitamento dipende in gran parte dal materiale della struttura dell’edificio, in quanto materiali diversi hanno resistenze e proprietà diverse. I materiali duri, come l’acciaio o il calcestruzzo, richiedono profondità di avvitamento inferiori, mentre i materiali morbidi, come il calcestruzzo cellulare o i mattoni leggeri, richiedono una profondità di ancoraggio maggiore per garantire una stabilità ottimale. Veda la tabella sottostante.
Preforatura
Il diametro di preforatura dipende dal materiale della struttura dell’edificio. In particolare per luce La foratura con impatto deve essere evitata per non danneggiare il materiale. Per i dettagli, faccia riferimento alla tabella sottostante.
Lunghezza della vite
La lunghezza della vite è determinata dalla sporgenza del sistema di installazione pre-murale (profondità) e dalle proprietà del materiale della struttura dell’edificio (profondità di avvitamento richiesta).
Per la profondità di foratura vale quanto segue: profondità di avvitamento + 10 mm.
Tavolo di foratura e avvitamento
COMPACFOAM può essere facilmente tagliato a misura utilizzando le seghe disponibili in commercio, come le seghe circolari, le seghe a pressione o le seghe circolari manuali. È importante utilizzare lame con un’ampia spaziatura dei denti e uno spazio libero per i trucioli.
Per il taglio di COMPACFOAM consigliamo lame con denti piatti e limitatore di spessore del truciolo e passo dei denti molto grande. I risultati di taglio ottimali si ottengono a 2000 giri al minuto.
Raccomandazione per la lama della sega
Cliccando sul pulsante acconsenti alla condivisione dei dati con YouTube.
Ulteriori informazioniLa linea guida ETB per i componenti anticaduta da pavimento a soffitto richiede una capacità di carico di almeno 2,8 kN nei punti di fissaggio pertinenti. Lo scopo delle vetrate anticaduta è quello di proteggere le persone dalla caduta a un livello inferiore. Sono progettate per ridurre al minimo il rischio di lesioni in caso di impatto e per garantire che l’area di circolazione sottostante non sia messa in pericolo da vetri rotti. Esempi di vetrate di questo tipo sono le balaustre, le ringhiere delle scale in vetro e le finestre dal pavimento al soffitto.
Il sistema Klima Konform soddisfa tutti questi requisiti e offre quindi il massimo livello di protezione e sicurezza per gli elementi anticaduta.
Per gli elementi con proprietà di protezione anticaduta (ETB), a seconda della rispettiva categoria (A / C2 / C3), il profilo della finestra deve essere fissato anche con una seconda vite (doppia vite). La distanza tra le viti è di 80 mm, la distanza dal bordo è di almeno 40 mm dall’esterno del profilo di montaggio pre-parete e la profondità di avvitamento nel profilo di montaggio pre-parete deve essere di 80 mm.
In Austria, le distanze di fissaggio per tutti i tipi di finestre sono standardizzate a 700 mm. La linea guida RAL (DE) specifica un massimo di 700 mm per le finestre in PVC e 800 mm per le finestre in legno e alluminio. In linea di principio, le specifiche nazionali e di altro tipo devono essere rispettate!
Tolleranza
Lunghezza: +2/-2mm Tolleranze di fresatura: +/-0,3mm Piegatura <3mm Chiavi +0,0/-0,5mm
Materiale
CF125 o CFeco200
La verifica della protezione antieffrazione avviene secondo le norme ÖNORM B 5338 e DIN EN 1627-1630 e comprende i seguenti requisiti:
Resistenza al carico statico
La capacità portante della struttura viene verificata mediante carichi di compressione di 3000 N RC2 e 6000 N RC3 su tutti i punti critici.
Resistenza al carico dinamico
Un test d’impatto a pendolo con un pneumatico gemello da 50 kg verifica la stabilità del sistema sotto le forze dinamiche nei punti deboli rilevanti.
Resistenza ai tentativi di effrazione manuale
In un test a due fasi, le aree critiche vengono testate per la sicurezza utilizzando strumenti di scasso standardizzati. Il primo test viene effettuato tra il telaio della finestra e il sistema Klima Konform. Inoltre, viene effettuato un attacco sul collegamento del sistema di installazione pre-muro al corpo della parete.
Insonorizzazione – Klima Konform
L’isolamento acustico svolge un ruolo centrale nell’installazione pre-murale, in particolare in aree come la costruzione di finestre, la costruzione di facciate e le costruzioni metalliche. L’uso mirato di materiali e tecniche innovative può ridurre al minimo i ponti acustici e garantire proprietà acustiche ottimali per l’edificio.
Materiali fonoassorbenti. Materiali ad alta densità come COMPACFOAM offrono eccellenti proprietà acustiche. L’elevata rigidità minimizza efficacemente i ponti acustici e garantisce un isolamento acustico sostenibile dell’edificio.
Disaccoppiamento. Il disaccoppiamento meccanico della costruzione dalla parete riduce al minimo la trasmissione del suono trasmesso dalla struttura e ottimizza le prestazioni acustiche dell’edificio.
Isolamento termico: valore fRsi nell’installazione pre-murale con Klima Konform
La crescita della muffa è spesso causata da temperature troppo basse sulla superficie interna dell’intradotto. La norma DIN 4108-2 definisce il fattore di temperatura fRsi, che descrive il rapporto tra la temperatura superficiale e la temperatura interna ed esterna. Un valore di almeno 0,7 assicura che la temperatura rimanga abbastanza alta da impedire la formazione di muffa.
Nel Clima standard la temperatura superficiale critica è < +12,6 °Cche è a prova di possibile formazione di muffa.
Vantaggi dell’installazione con Klima Konform
Il sistema di installazione pre-murale Klima Konform migliora le curve di temperatura tra il sistema a parete e la finestra. Le isoterme mostrano chiaramente i vantaggi dell’installazione pre-murale rispetto all’installazione convenzionale.
Klima Konform raggiunge un isolamento termico ottimale che soddisfa i requisiti fRsi e previene la formazione di muffa.
Condizioni generali
Temperatura esterna: -5 °C
Temperatura interna: +20 °C
Umidità relativa esterna: 80 %
Umidità relativa interna: 50 %
Codifica dei colori delle isoterme:
Con l’aiuto di un processo di nuova concezione, la tecnologia delle particelle, siamo in grado di possiamo riciclare il 100% degli scarti di COMPACFOAM. CFeco200, il risultato di questo processo, offre le stesse buone proprietà di COMPACFOAM: elevata resistenza con un eccellente isolamento termico.
Può ordinare il sistema Klima Konform anche nella versione di riciclata sostenibile CFeco200.
In ogni caso, aumenterà la percentuale di riciclaggio nell’edilizia e migliorerà l’ecobilancio del suo progetto e della sua azienda. Perché la tutela dell’ambiente significa mantenere le cose in circolazione invece di smaltirle con costi elevati.
Cliccando sul pulsante acconsenti alla condivisione dei dati con YouTube.
Ulteriori informazioniConfigura e richiedi il sistema Klima Konform
Seleziona il tuo sistema in base a sporgenza, sezione del profilo e tipo di finestra. Richiedi direttamente profili standard, profili CNC personalizzati e accessori (viti, adesivo di montaggio, lame da sega, dime).
Configura ora e richiedi un preventivoData sheets
Testimonianze dei clienti
“Abbiamo tagliato i profili a misura con la nostra sega circolare esistente e li abbiamo avvitati subito. Nessun utensile speciale, nessuna necessità di riorganizzare il laboratorio – questo è stato il motivo principale per cui abbiamo deciso di testare il sistema.“
Thomas R.
Installatore di serramenti
“Per un progetto Casa Passiva, il committente ha richiesto tutta la documentazione necessaria – analisi strutturale, protezione anticaduta e isolamento acustico. COMPACFOAM aveva documentato tutto. Questo ha reso molto più semplice per noi il collaudo finale.”
Andreas K.
Responsabile di progetto
“Per un progetto di ristrutturazione con 14 finestre, avevamo bisogno di tre diverse sporgenze. Le dimensioni personalizzate non sono state un problema.“
Michael S.
Maestro carpentiere metallico
Videos
Cliccando sul pulsante acconsenti alla condivisione dei dati con YouTube.
Ulteriori informazioniVideo di installazione per l’installazione pre-murale,
Standard
Cliccando sul pulsante acconsenti alla condivisione dei dati con YouTube.
Ulteriori informazioniVideo di installazione pre-muro, caso speciale: carichi pesanti 1
Cliccando sul pulsante acconsenti alla condivisione dei dati con YouTube.
Ulteriori informazioniVideo di installazione pre-muro, caso speciale: carichi pesanti 2
Cliccando sul pulsante acconsenti alla condivisione dei dati con YouTube.
Ulteriori informazioniVideo di installazione per l’installazione pre-muro, V-Fixx (muratura a doppio guscio)
Cliccando sul pulsante acconsenti alla condivisione dei dati con YouTube.
Ulteriori informazioniVideo dell’installazione pre-muro, caso speciale costruzione in acciaio
Cliccando sul pulsante acconsenti alla condivisione dei dati con YouTube.
Ulteriori informazioniSegare correttamente il materiale isolante per l’edilizia
Cliccando sul pulsante acconsenti alla condivisione dei dati con YouTube.
Ulteriori informazioniMontaggio collegamento a vite video
Formati disponibili
Lunghezza standard:
Lunghezza: 2250 mm, Altezza: 80 mm – Dimensioni personalizzate disponibili
Lunghezza standard:
Lunghezza: 2350 mm, Altezza: 80 mm – Dimensioni personalizzate disponibili
Lunghezza standard:
Lunghezza: 2350 mm, Altezza: 80 mm – Dimensioni personalizzate disponibili – CF125 & CFeco200
Lunghezza standard:
Lunghezza: 2350 mm, Altezza: 80 mm – Dimensioni personalizzate disponibili – CF125 & CFeco200
Reviewed by
FAQ – Domande frequenti sul sistema Klima Konform
CF125 è il materiale standard con una densità di 125 kg/m³ e un valore λ di 0,038 W/mK. CFeco200 è realizzato al 100% con sfridi di COMPACFOAM riciclati, ha una densità di 200 kg/m³ e un valore λ di 0,045 W/mK. Entrambe le varianti sono omologate per il sistema Klima Konform e sono state testate dall’ift. CFeco200 offre funzionalità identiche con un’impronta ambientale migliorata.
Il sistema è stato testato per pesi del vetro fino a 1.500 kg. La capacità portante effettiva dipende dalla sporgenza, dal numero di punti di fissaggio e dal supporto. Per elementi pesanti (porte ad alzata e scorrimento, grandi vetrate fisse), sono disponibili soluzioni di installazione speciali con staffe aggiuntive per sporgenze superiori a 100 mm.
COMPACFOAM è resistente all’umidità e al gelo. Il materiale non assorbe acqua, non marcisce e mantiene le sue proprietà meccaniche anche in caso di esposizione prolungata alle intemperie. È permeabile al vapore e può quindi essere utilizzato nei sistemi a cappotto termico senza problemi legati all’umidità.
COMPACFOAM è classificato B1 (difficilmente infiammabile) secondo la DIN 4102-1 e come materiale da costruzione di classe E secondo la EN 13501-1. Il materiale soddisfa quindi i requisiti per l’impiego nelle facciate ETICS. Per requisiti specifici di protezione antincendio (es. classe dell’edificio 4/5), la situazione di installazione deve essere valutata caso per caso.
Sì. COMPACFOAM può essere lavorato con utensili standard per la lavorazione del legno: sega circolare, sega giapponese, sega circolare portatile, avvitatore a batteria. Non sono necessari utensili speciali. Si raccomandano lame con ampio passo dei denti e spazio libero per i trucioli – un elenco di lame consigliate è incluso. Non è necessaria alcuna preforatura nel profilo stesso.
Il sistema Klima Konform è stato testato per l’uso su tutti i supporti minerali portanti: calcestruzzo, mattone silico-calcareo, mattone pieno, mattone forato verticalmente e calcestruzzo cellulare. La profondità di avvitamento e il diametro di preforatura variano in base al supporto – la tabella completa di avvitamento è disponibile per il download. Nel caso di strutture leggere (es. calcestruzzo cellulare), la foratura a percussione va evitata.
I profili standard sono disponibili in diverse profondità a partire da 35 mm. Per profondità maggiori o progetti personalizzati, COMPACFOAM realizza sezioni di profilo su misura fino a 4.700 mm di lunghezza in un unico pezzo tramite macchine CNC a 5 assi. Cunei isolanti, profili inclinati e soluzioni integrate per intradossi sono anch’essi disponibili come profili CNC personalizzati.
I profili vengono giuntati di testa con MS polymer. Questo crea giunti ermetici all’aria e alla pioggia battente. I profili sono progettati in modo che gli sfridi possano essere riutilizzati – non c’è spreco. I giunti angolari vengono realizzati con lo stesso principio.
I sistemi a base adesiva (es. a base Purenit) trasferiscono i carichi alla parete tramite le superfici incollate. Ciò richiede temperature adeguate, tempi di indurimento e, se necessario, un primer. Il sistema Klima Konform viene avvitato direttamente oltre ad essere incollato – il collegamento a vite è immediatamente portante, indipendentemente dalle condizioni meteorologiche e dai tempi di indurimento. Entrambi gli approcci sono testati ift, ma differiscono per procedura di installazione e flessibilità in cantiere.
In genere no. I profili possono essere giuntati di testa e incollati. Gli sfridi possono essere riutilizzati. Per progetti con dimensioni ricorrenti, COMPACFOAM fornisce anche pezzi tagliati su misura a progetto direttamente dalla fabbrica – riducendo ulteriormente il carico di lavoro in cantiere.
Sì. I profili standard possono essere ordinati anche in piccole quantità dal negozio online COMPACFOAM. Per i committenti di progetto non è necessario passare attraverso i distributori. I profili CNC personalizzati vengono prodotti progetto per progetto e sono disponibili anche in piccole quantità.
COMPACFOAM fornisce una documentazione di prova completa: test di sistema ift (secondo MO-01/1), rapporti di prova ETB per la protezione anticaduta (Categoria A/C2/C3), rapporti di prova antieffrazione (RC2/RC3 secondo DIN EN 1627-1630), rapporti di prova isolamento acustico, calcoli di isolamento termico (fRsi, valori Ψ) e classificazione al fuoco (B1). Tutti i documenti sono disponibili su richiesta.
Sì. Il posizionamento della finestra nello strato isolante migliora significativamente i valori Ψ nel punto di giunzione dei componenti edilizi. I valori Ψ specifici dipendono dalla struttura della parete, dal design della finestra e dalla sporgenza. COMPACFOAM può assistere con calcoli specifici per il progetto – si prega di contattare il nostro team di supporto tecnico.
Sì. La finestra è avvitata nel telaio Klima Konform e può essere rimossa allentando le viti. Il telaio di montaggio rimane nella parete. Una nuova finestra viene inserita nello stesso telaio – l’ETICS e l’impermeabilizzazione rimangono sostanzialmente intatti.
Sì. Il team di ingegneria applicativa fornisce supporto con calcoli strutturali preliminari (punti di fissaggio, lunghezze delle viti, requisiti delle staffe), selezione del sistema (profilo standard vs. profilo CNC personalizzato) e verifica strutturale. Il calcolatore di fissaggio COMPACFOAM determina le singole forze di appoggio nei punti di fissaggio.
Sì. COMPACFOAM fornisce documenti per i capitolati per scenari di installazione standard. Questi possono essere richiesti al reparto di Ingegneria Applicativa o nella sezione download. Per costruzioni speciali vengono redatti documenti specifici per il progetto.
Yes. Sample proSì. I profili campione per i primi test possono essere ordinati tramite il negozio online o direttamente dal nostro team di supporto tecnico. Questo vi consente di testare personalmente le caratteristiche prestazionali del prodotto – come le proprietà di avvitamento, il comportamento al taglio e la precisione dimensionale – prima di prendere una decisione per il vostro progetto.files for initial testing can be ordered via the online shop or directly from our technical support team. This allows you to test the product’s performance characteristics – such as screw-fastening properties, sawing performance and dimensional accuracy – yourself before making a decision on your project.
I profili standard sono disponibili a magazzino con tempi di consegna brevi. I profili CNC personalizzati vengono prodotti progetto per progetto – i tempi di consegna dipendono dall’entità e dalla complessità dell’ordine. Per una data di consegna specifica, si prega di contattare il nostro team di Ingegneria Applicativa con i dettagli del progetto.













































