Costruzione di finestre
Sottostruttura per sistemi di ascensori e scivoli
La tendenza a realizzare sistemi di sollevamento e di scorrimento sempre più grandi comporta pesi conseguentemente più elevati che devono essere trasferiti al profilo isolante della sottostruttura.
La sottostruttura dell’ascensore e dello scivolo combina resistenza ed eccellente isolamento termico grazie a due strati portanti e ad un nucleo isolante con un peso morto molto basso. Grazie ai due spessi strati portanti all’interno e all’esterno, le connessioni a vite possono essere realizzate dall’alto e dal basso senza problemi. Le forze vengono così facilmente trasferite nella muratura.
Economico e sicuro
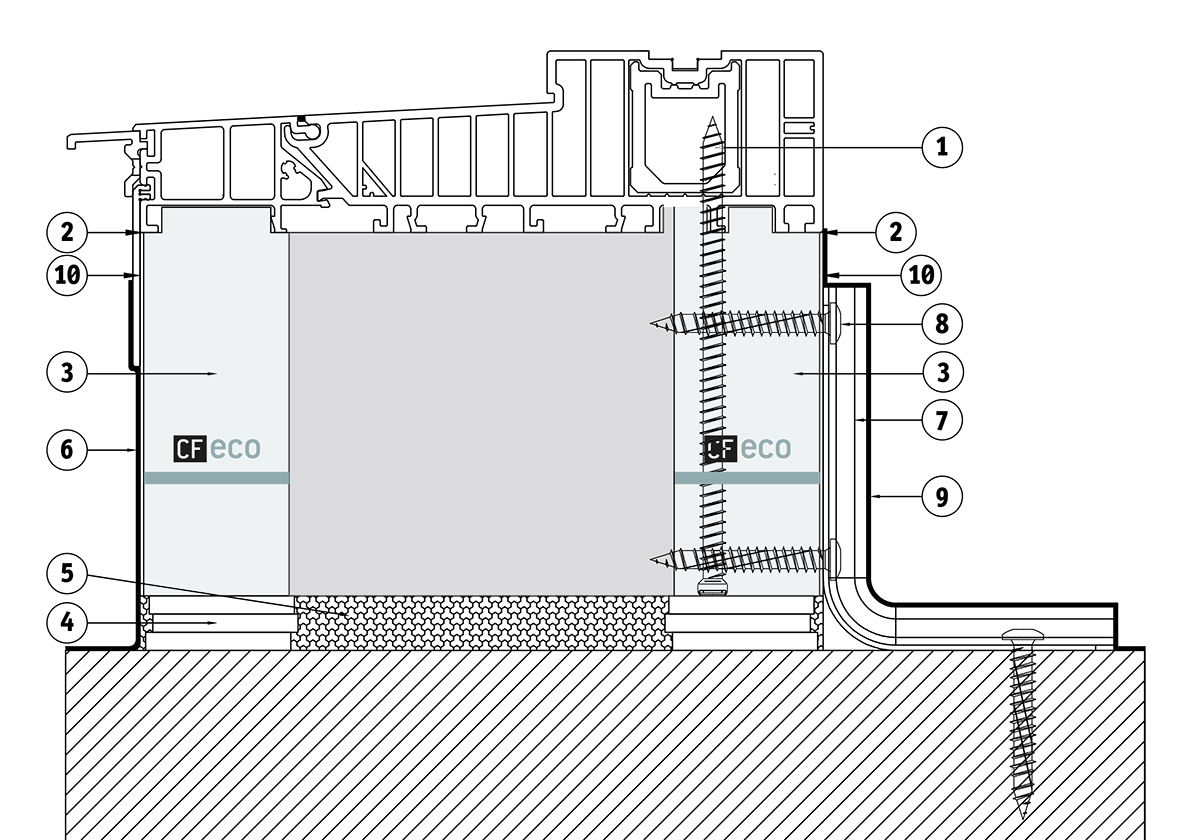
Dettagli
Variante di installazione con profili isolanti della sottostruttura altamente isolanti, adatti a tutte le soglie di porte alzanti e scorrevoli.
- Vite per telaio di finestra 7,5 mm – non è necessaria alcuna preforatura nel profilo della sottostruttura; distanza e lunghezza di ancoraggio in base ai requisiti strutturali o alle linee guida RAL.
- Incollaggio del giunto con adesivo polimerico MS o nastro adesivo
- Corsi di base 40 mm CFeco
- Spessori
- Isolamento dei giunti secondo lo stato dell’arte
- Impermeabilizzazione esterna all’avanguardia, ad esempio plastica liquida secondo la lista di idoneità, membrane bituminose
- Staffa di montaggio secondo la statica
- Vite telaio finestra 7,5 mm testa piatta
- Sigillatura interna secondo lo stato dell’arte
- Strato superiore in PVC
- I due strati portanti solidi all’interno e all’esterno trasferiscono in modo sicuro il peso elevato delle porte a scorrimento e ad alzata nella struttura dell’edificio.
- La staffa di montaggio può anche essere avvitata in modo robusto negli ampi strati di base.
- La pressione del vento, l’aspirazione del vento e le forze ETB vengono assorbite dalla controfresatura e dalla staffa di montaggio.
Dimensioni:
Superfici:
Profilazione:
Dimensioni
COMPACFOAM I profili isolanti per sottostrutture sono disponibili non solo nella lunghezza standard di 2350 mm, ma anche in qualsiasi lunghezza desiderata fino a 6 metri.
Rivestimento
Su richiesta, la sottostruttura può essere dotata di un rivestimento in PVC su uno o entrambi i lati.
Flessibilità
Può ottenere la massima flessibilità acquistando pannelli che taglierà e profilerà lei stesso nella sua officina.
Profilatura/contorno
Non ci sono limiti quando si parla di profilatura. Non sono assolutamente necessari strumenti personalizzati, il che ci permette di profilare anche piccole quantità in modo economico. Forniamo la sottostruttura personalizzata per la VOSTRA porta alzante-scorrevole.
Il profilo di impilamento (connessione a innesto con linguetta e scanalatura) consente di ottenere in modo flessibile diverse altezze di stacco.
La lavorazione con la nostra fresatrice CNC a 5 assi è possibile anche fino a 4700x600x300 mm in un unico pezzo, per requisiti altamente complessi e personalizzati.
COMPACFOAM può essere facilmente tagliato a misura utilizzando le seghe disponibili in commercio, come le seghe circolari, le seghe a pressione o le seghe circolari manuali. È importante utilizzare lame con un’ampia spaziatura dei denti e uno spazio libero per i trucioli.
Per il taglio di COMPACFOAM consigliamo lame con denti piatti e limitatore di spessore del truciolo e passo dei denti molto grande. I risultati di taglio ottimali si ottengono a 2000 giri al minuto.
Raccomandazione per la lama della sega
Caricare il contenuto di {{ nome }}. Il caricamento comporta il trasferimento di dati a fornitori terzi.
Ulteriori informazioniCon l’aiuto di un processo di nuova concezione, la tecnologia delle particelle, siamo in grado di possiamo riciclare il 100% degli scarti di COMPACFOAM . CFeco200, il risultato di questo processo, offre le stesse buone proprietà di COMPACFOAM: elevata resistenza con un eccellente isolamento termico.
I due strati di base del COMPACFOAM-Le sottostrutture scorrevoli sono prodotte in CFeco200 come standard. Ciò significa che sta utilizzando un sistema di sottostruttura realizzato in gran parte con materiale riciclato. Se opta per la versione con nucleo solido (sottostruttura senza nucleo isolante), può persino lavorare con una sottostruttura realizzata con materiale riciclato al 100 %.
In ogni caso, aumenterà la percentuale di riciclaggio nell’edilizia e migliorerà l’ecobilancio del suo progetto e della sua azienda. Perché la tutela dell’ambiente significa mantenere le cose in circolazione invece di smaltirle con costi elevati.
Caricare il contenuto di {{ nome }}. Il caricamento comporta il trasferimento di dati a fornitori terzi.
Ulteriori informazioni1. tenuta all’aria e all’acqua
2. montaggio della sottostruttura
3. installazione
4. Sigillatura esterna
I seguenti materiali possono essere utilizzati per la sigillatura:
Anche l’impermeabilizzazione con teli di bitume ricoperti di ritardante di fiamma è possibile, se eseguita correttamente.
Ulteriori informazioni sulla sigillatura sono disponibili qui.
Alla scheda tecnicaVideo
Caricare il contenuto di {{ nome }}. Il caricamento comporta il trasferimento di dati a fornitori terzi.
Ulteriori informazioniSottostruttura (profilo di impilamento/assemblato)
Caricare il contenuto di {{ nome }}. Il caricamento comporta il trasferimento di dati a fornitori terzi.
Ulteriori informazioniAccatastamento dei profili di isolamento della sottostruttura
Caricare il contenuto di {{ nome }}. Il caricamento comporta il trasferimento di dati a fornitori terzi.
Ulteriori informazioniCollegamento a vite di montaggio
Caricare il contenuto di {{ nome }}. Il caricamento comporta il trasferimento di dati a fornitori terzi.
Ulteriori informazioni









